产品搜索:8251个产品

所有工程案例

139 案例
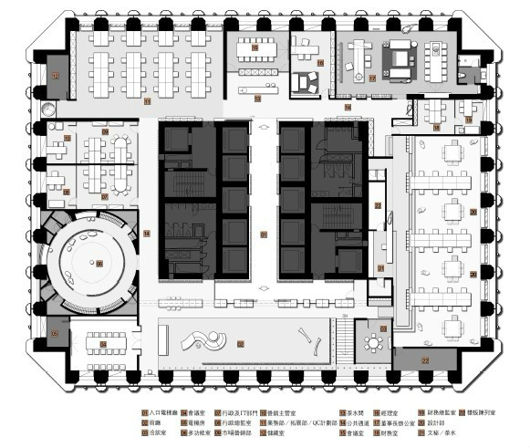
上海乐尚设计-办公空间
本案设计初期,乐尚的华体会体育官方在线官网们将公司自身“创意自由,规划严谨”的设计理念,将我们工作与客户交流的平台环境,最终分为两个追求的目标,其一展现并满足自身所需的平面功能外,将这一平面立体展开,实现了其二我们想要表达的空间感、层次感、质感,最终我们需要的乐尚在三维立体空间展现在我们面前。 初期的概念构想,一个时代的元素融入另一时代中,体现为取一种工业性质的混凝水泥墙体,恰到好处的融合到很现代的空间中。这两种质感不同的元素混合,精心的在华体会体育官方在线官网的深化思维中,重新进行了空间搭配,二者发生了很巧妙的发酵,同时,大面积采用玻璃隔断,让每个比邻区域通透感增强,与此同时,乐尚的抹茶绿及橙色标准色调,恰到好处穿插在每个区域中。而这些恰恰体现在不同场合下的整体视觉感,干净整洁的线条贯穿空间始终同时力求突出舒适性。各区域即独立又相互融合,亦可根据公司的使用和发展灵活调配。布局上层次分明,以一致的线条走向自然过渡到每个办公空间,以简洁的线条表现形式美,再配以恰到好处的灯光,营造出一个简洁明朗、自然通透的现代空间。用朴素的手法表现空间的本质,传达文化的内涵。营造出一个充满张力,移步逸景的办公空间。
123