南京句容市图书馆欣赏
案例说明
纵然我们有一万个爱上图书馆的理由,然而无论如何也比不上文学家和诗人博尔赫斯对于它的认识和理解来得深阔有力。他在他的《 关于天赐的诗》里这样描述:“上帝给了我浩瀚的书海,和一双看不见的眼睛;那盲目的图书馆雄伟幽深, 而我却盲目摸索,心劳力瘁。即便如 此,我依然暗暗设想,天堂应该是图书馆的模样。”博尔赫斯在担任阿根廷国家图书馆馆长的时候眼睛近乎失明,但正是因为这点,他得以在更 深的灵里理解和感知这个世界。虽然肉体的双眼被关上了,但他灵魂的眼睛却被真正打开了,他敏感的内心在黑暗的光里看得更加明晰。
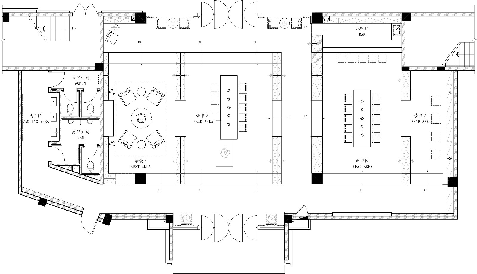
项目名称:南京句容市图书馆金科分馆
设计公司:风合睦晨空间设计
华体会体育官方在线官网:陈贻 张睦晨
项目地址:南京句容市
建筑面积:300㎡
设计完成时间:2017年05月
纵然我们有一万个爱上图书馆的理由,然而无论如何也比不上文学家和诗人博尔赫斯对于它的认识和理解来得深阔有力。他在他的《关于天赐的诗》里这样描述:“上帝给了我浩瀚的书海,和一双看不见的眼睛;那盲目的图书馆雄伟幽深, 而我却盲目摸索,心劳力瘁。即便如此,我依然暗暗设想,天堂应该是图书馆的模样。”博尔赫斯在担任阿根廷国家图书馆馆长的时候眼睛近乎失明,但正是因为这点,他得以在更深的灵里理解和感知这个世界。虽然肉体的双眼被关上了,但他灵魂的眼睛却被真正打开了,他敏感的内心在黑暗的光里看得更加明晰。


“图书馆是无限的,周而复始的。假如一个永恒旅人从任何方向穿过去,几个世纪后他将发现同样的书籍会以同样的无序进行重复。有了那个美好的希望,我的孤寂得到了一点安慰。”在他眼里,图书馆是一个迷宫,一个“小径分岔的花园”,一个深邃的宇宙。“肉体终将消失,而心灵的产物——图书馆却会永存。”他又将世界本质归结为一本圆形循环的书——包罗万象,无始无终。“时间永远分岔,通向无数将来。”博尔赫斯用他最真挚的感情和最深刻的认知触摸到了时间的本质、宇宙的秩序以及人类心灵中那个真正的图书馆。




图书馆,象征的是人类精神寻求的至高点;而天堂,却是人类灵魂最终渴望的栖息地。当我们抬头仰望繁星闪烁的夜空,独自思想宇宙何其浩瀚。我们向着自己的内心发问,纵使我们不盲,我们又能看清这眼前的世界吗?我们真的有能力去认清这世界真实模样吗?当你踟躇在人类知识的图书馆里,徜徉在书籍的时空流转中,多如繁星的知识的亮光不停地闪耀,发出刺眼的光芒。我们渴望生命可以达至永恒,相信可以凭借我们自己的智慧带领我们自身踏入永生的大门。



人类的骄傲一直都在带领着我们在不同领域,甚或是精神领域修筑着可以象征人类智慧比肩上帝的通天塔。然而,穷尽一生追寻智慧的所罗门王在他晚年时感叹:“虚空的虚空,虚空的虚空,凡事都是虚空。”他告诫世人不论是对知识抑或是对快乐的寻求,都是虚空、都是捕风;人在日光之下的劳碌以及对所谓的智慧、财富、美名、寿命、权力、地位一切的追求,结果也是虚空,没有意义,没有满足,没有尽头。当生命的意义在面对死亡的挑战时瞬间变得虚无缥缈,人类建造的巴别塔也随即轰然坍塌。 用知识构筑起来的“图书馆”就像一道墙,它保护着我们,同时又束缚着我们,它既开启我们的心灵,同时又遮蔽我们的心智。知识和智慧作为认知真理、道路和生命的手段,因着人类自身的狭隘和虚妄,那浩繁的图书卷册带给人的只有紊乱和遮蔽,让人迷失在灵魂的旷野中,正如博尔赫斯所形容的迷失在这茫茫书海的迷宫中了。



风随着意思而吹,你听见风的响声,却不知道它从哪里来,往哪里去。这风的源头如同万籁俱静时人们心灵虚空处隐约传来的微声,启示你与这源头建立血脉连接的灵魂归处才是天堂所在。万物都因这源头的思想、智慧而存在。人类的生命也只有在与这源头重新建立起血脉联系后,智慧思维下的一切创造才有了真正意义上的标杆,也才具备了在这茫茫书海中找寻到那条通往永恒真理的道路的可能性,从而认清生命被造之初所命定的永恒意义。




愿这源头的光能透过风合睦晨设计的这个不起眼的小小社区图书馆照亮里面读者的心,引领他们可以在这书海中找寻和感受到那真正的智慧。因为每当夜深人静的时候,我们的灵魂深处仍会时刻的询问--我们从何处来?我们是谁?我们向何处去?



