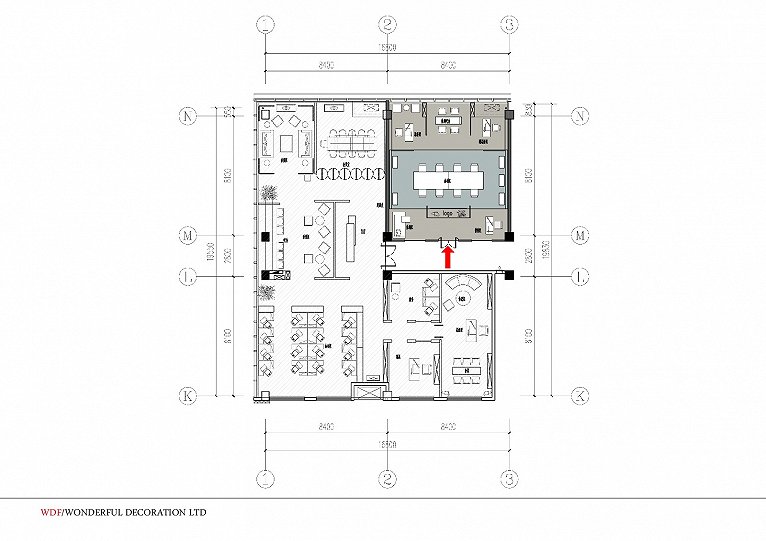
鑫苑鑫中心写字楼样板间

案例说明

鑫苑鑫中心写字楼样板间




作品类别:办公
项目名称:鑫苑鑫中心写字楼样板间
项目地址:济南花园路与华信路西南角
建筑面积:110平方米
竣工时间:2016年8月
主创华体会体育官方在线官网:王宝东
设计团队:李庆、莫文慧
服务范围:室内设计、灯光设计
主要材料:石材、不镜钢、皮革、烤漆板、木地板、玻璃